1. TỔNG QUAN SẢN PHẨM NẮP HỐ GA INOX 304/201
Nơi sản xuất: Công ty Lương Sơn Bạc – Nhà xưởng tại Road 9A, KCN Hòa Khánh, Liên Chiểu, Đà Nẵng.
Vật liệu tùy chọn:
| Inox 304 | Chống gỉ sét và ăn mòn vượt trội, siêu bền, thẩm mỹ cao, phù hợp môi trường khắc nghiệt (ngoài trời, ven biển, công nghiệp). Lựa chọn tối ưu cho độ bền lâu dài. |
| Thép SS400 mạ kẽm nhúng nóng | Giá thành rẻ nhất, chịu lực tốt, phổ biến. Lớp mạ kẽm giúp chống gỉ sét tốt, tuy nhiên cần kiểm tra bảo vệ lớp mạ định kỳ, đặc biệt nếu bị trầy xước. |
| Inox 201 | Giá thành hợp lý hơn Inox 304, độ cứng cao. Phù hợp cho môi trường khô ráo, trong nhà, ít yêu cầu về chống ăn mòn. |
- Thiết kế: Bề mặt âm sàn tinh tế, có thể tùy chỉnh hoa văn, kích thước theo yêu cầu đặc thù của khách hàng.
LSB nhận thiết kế và sản xuất theo yêu cầu riêng của từng công trình.

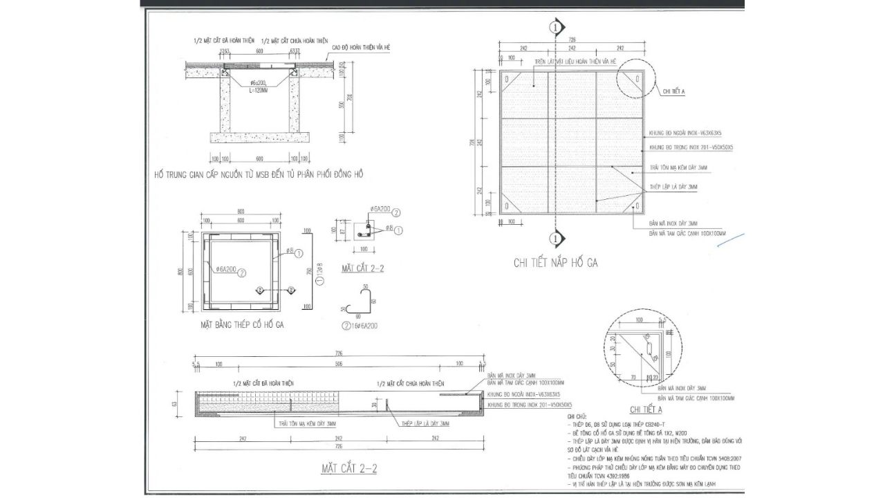
2. BẢN VẼ KỸ THUẬT NẮP HỐ GA INOX 304/201

3. CẤU TẠO CHI TIẾT NẮP HỐ GA INOX 304/201
Nắp hố ga inox 304/201 được cấu tạo chính từ hai phần chính:
Phần nắp đậy phía trên: Là phần nắp có thể tháo rời, đặt vừa khít vào khung đỡ. Điểm đặc biệt là phần nắp này được thiết kế dạng khay lõm xuống (mặt âm). Nhỏ hơn kích thước khung ngoài để đảm bảo đặt lọt lòng khung.
Thiết kế khay lõm này cho phép người dùng dễ dàng lát gạch, đá, hoặc vật liệu hoàn thiện sàn khác lên trên bề mặt. Độ sâu của khay âm thường được tính toán để bằng với độ dày của gạch + lớp vữa/keo dán, giúp bề mặt hoàn thiện của nắp bằng phẳng tuyệt đối với mặt sàn xung quanh. Điều này tạo nên tính thẩm mỹ vượt trội, giúp “che giấu” vị trí hố ga một cách tinh tế. Ngoài ra, có thể trồng cỏ lên bề mặt này trong các khu vực sân vườn.

Mặt dưới nắp thường được gia cường bằng các thanh thép hàn tăng cứng để đảm bảo khả năng chịu lực theo thiết kế (tải trọng người đi bộ, xe máy hoặc ô tô tùy loại).
Thường có 2 hoặc 4 lỗ để móc dụng cụ nâng chuyên dụng (đi kèm sản phẩm), giúp việc nhấc nắp lên để kiểm tra, bảo trì dễ dàng.
Phần khung đỡ phía dưới: được làm từ inox (SUS304/SUS201) hoặc thép tấm dày dặn, được hàn chắc chắn tạo thành một khung vuông hoặc chữ nhật vững chắc. Khung thường được hàn thêm các thanh móc thép hoặc tai cài để tăng khả năng bám dính, liên kết chặt chẽ vào lớp bê tông nền khi lắp đặt.
Thông số kỹ thuật:
| Kích thước khung | Đa dạng: 500x500mm, 600x600mm, 700x700mm,… |
| Chiều cao khung | 30 – 100mm hoặc cao hơn |
| Độ dày vật liệu | 3 – 10mm hoặc dày hơn |
Ngoài 2 phần chính này thì tùy từng loại thiết kế sẽ có thêm phần bản lề, khóa móc, tay nắm, hoặc lỗ thoát nước….

Đặc biệt: Nắp hố ga inox thường được bố trí 4 cạnh bo hình tam giác (thường thấy ở các góc khung hoặc nắp), hay còn được gọi là gân tăng cứng hoặc ke góc, có tác dụng gia cường kết cấu tại các góc – vị trí chịu ứng suất tập trung. Chúng giúp tăng độ cứng vững cho khung và nắp, chống lại sự biến dạng (móp méo) dưới tác động của tải trọng, đặc biệt là tải trọng động hoặc khi nắp có kích thước lớn. Đồng thời, chúng giúp phân bổ lực đều hơn trên toàn bộ kết cấu.
3. TÍNH NĂNG VÀ LỢI ÍCH CỦA NẮP HỐ GA INOX 304/201
- Chất liệu cao cấp – INOX 304/201, chống gỉ, có khả năng hoạt động trong nhiều môi trường khác nhau.
- Cấu tạo dễ vệ sinh, kiểm tra thường xuyên.
- Nắp đậy kín, chống mùi và nước tràn ra khỏi hố ga.
- Tính thẩm mỹ cao, sang trọng.
- Dễ lắp đặt, thay thế khi nắp cũ hoặc lắp đặt cho bể mới.

4. HƯỚNG DẪN LẮP ĐẶT NẮP HỐ GA INOX 304/201
Việc lắp đặt đúng kỹ thuật sẽ đảm bảo hiệu quả sử dụng và thẩm mỹ lâu dài. Nên thực hiện khi công trình chưa hoàn thiện phần nền để dễ dàng căn chỉnh.
Bước 1: Chọn nhà cung cấp sản phẩm và đặt hàng
- Việc lựa chọn sản phẩm phù hợp giúp đảm bảo tính thẩm mỹ, chất lượng của cả công trình và không làm xáo trộn trật tự chung cả công trình. Vì thế, hãy cân nhắc và lựa chọn sản phẩm phù hợp từ các nhà cung cấp uy tín, chất lượng.
- Khi đặt hàng khách hàng cần chú ý nhắc nhà sản xuất lưu ý các kích thước phủ bì.
Bước 2: Đặt nắp hố ga inox vào vị trí
- Đưa nắp hố ga vào vị trí cần lắp đặt.
- Khi đặt cần căn chỉnh sao cho phù hợp để hạn chế việc cắt gạch lát nền và các bố trí các viên gạch không bị lệch.
Bước 3: Lát gạch vào phần nắp chính
- Sau khi nắp hố ga inox đã được cố định vị trí chúng ta bắt đầu lát gạch lên phần nắp chính.
- Hoàn thiện lắp đặt, căn chỉnh lại những chi tiết nhỏ cho chính xác.
Đừng để nắp hố ga làm mất đi vẻ đẹp công trình của bạn!
Công ty TNHH MTV Lương Sơn Bạc, với kinh nghiệm từ năm 2017, là đơn vị hàng đầu tại Việt Nam trong lĩnh vực sản xuất và cung ứng các sản phẩm gang, composite, sắt, thép, inox cho hạ tầng thoát nước và công nghiệp. Chúng tôi cam kết:
- Chất lượng đảm bảo
- Thiết kế theo yêu cầu
- Giá cả cạnh tranh
- Tư vấn chuyên nghiệp
- Uy tín đã được khẳng định
Liên hệ ngay với Lương Sơn Bạc qua
- Địa chỉ: Road 9A, KCN Hòa Khánh, Liên Chiểu, Đà Nẵng.
- Hotline: 0905.468.055 hoặc 032.9304.936
- Email: congtyluongsonbac@gmail.com
- Website: lsb.com.vn










































































Đánh giá
Chưa có đánh giá nào.