Cánh van ngăn mùi inox là một bộ phận trong hệ thống ngăn mùi hố ga, được làm từ inox để chịu được thời tiết và độ mòn. Nó hoạt động dựa trên áp lực của nước: khi có nước chảy qua, cánh van sẽ mở ra để thu nước và sẽ tự động đóng lại khi không còn nước để ngăn mùi hôi. cánh van ngăn mùi inox 304 thường được kết hợp với các bộ phận khác như hộp ngăn mùi và song chắn rác.
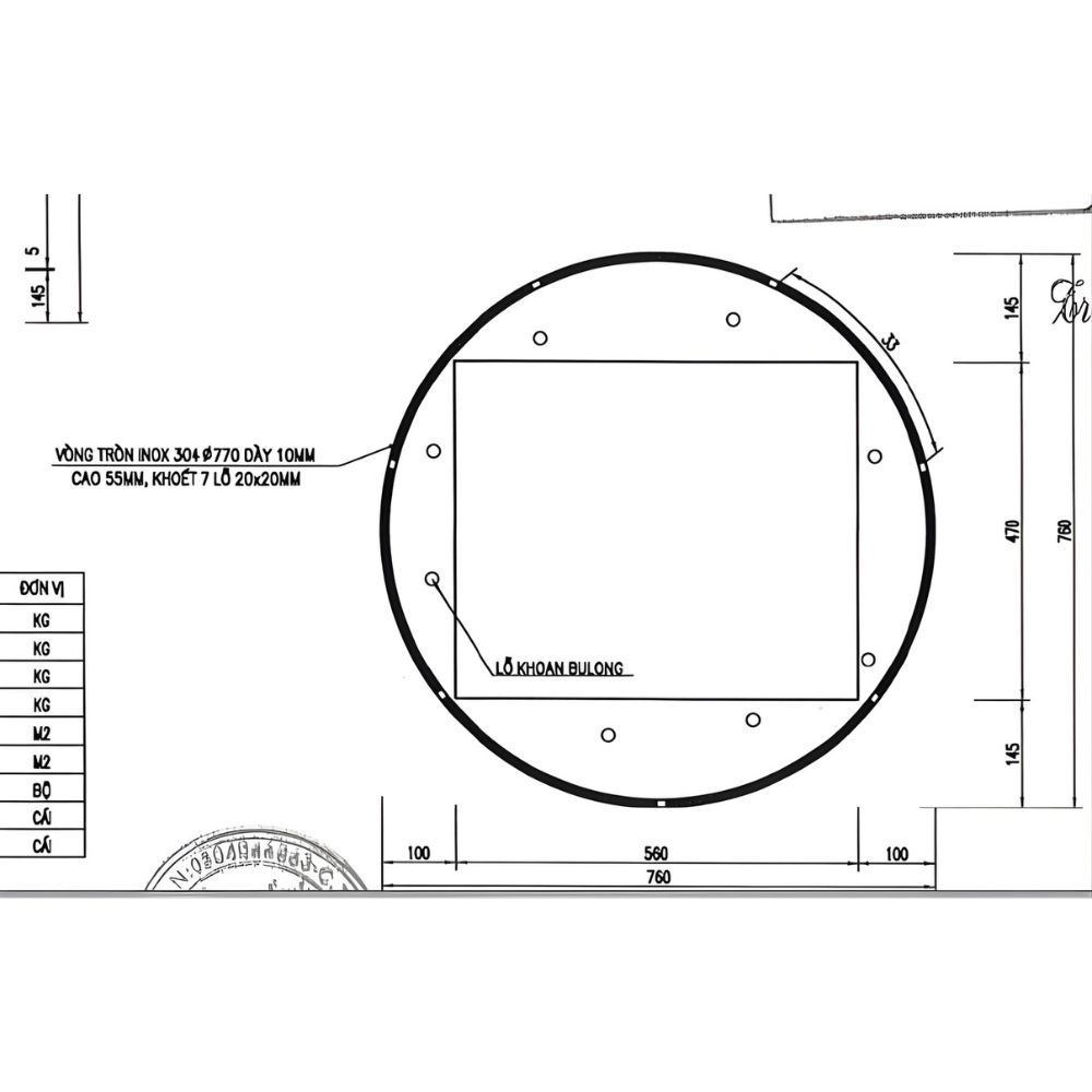
1. TỔNG QUAN SẢN PHẨM KHAY NGĂN MÙI INOX
Nơi sản xuất: Công ty Lương Sơn Bạc – Nhà xưởng tại Road 9A, KCN Hòa Khánh, Liên Chiểu, Đà Nẵng.
Vật liệu: Inox 304
Kích thước van ngăn mùi: 720×223mm
Bản lề: M10x120mm
Tấm liên kết: 50x50x2mm

2. CẤU TẠO CỦA CÁNH VAN NGĂN MÙI INOX 304
- Cánh van: Với chiều dài 720mm và chiều rộng 223mm. Tỷ lệ này giúp tối ưu diện tích tiếp xúc với miệng cống, vừa đảm bảo nước thoát ra nhanh chóng khi có áp lực, vừa kín khít để ngăn mùi hôi bay lên.
- Bản lề: Bản lề có kích thước M10x120mm là thành phần quan trọng giúp cánh van ngăn mùi inox 304 hoạt động linh hoạt và bền bỉ. Chất liệu inox 304 không chỉ mang lại độ bền cao mà còn chống gỉ sét, chịu được môi trường ẩm ướt và có hóa chất. Bản lề được thiết kế chắc chắn, đảm bảo cánh van ngăn mùi inox 304 có thể đóng mở nhịp nhàng theo áp lực nước mà không bị lệch hoặc gãy sau thời gian dài sử dụng.
- Tấm inox liên kết: có kích thước 50x50x2mm đóng vai trò gia cố cấu trúc của cánh van ngăn mùi inox 304. Đây là thành phần giúp cánh van ngăn mùi inox 304 giữ được độ cứng cáp, không bị biến dạng khi chịu áp lực nước lớn. Độ dày 2mm của tấm inox đảm bảo khả năng chịu lực tốt, đồng thời vẫn giữ trọng lượng vừa phải để van có thể dễ dàng hoạt động theo cơ chế đóng mở tự động.
- Cấu tạo của cánh van ngăn mùi inox 304 thể hiện sự kết hợp hoàn hảo giữa thiết kế và chất liệu, mang lại khả năng ngăn mùi, thoát nước hiệu quả và độ bền cao. Với các thông số kỹ thuật được tối ưu hóa, sản phẩm này không chỉ đáp ứng nhu cầu sử dụng mà còn dễ dàng bảo trì, sửa chữa, phù hợp với nhiều hệ thống hố ga tại các khu đô thị.

3. ĐẶC ĐIỂM CỦA CÁNH VAN NGĂN MÙI INOX 304
Cánh van ngăn mùi inox 304 là một thành phần quan trọng trong hệ thống thoát nước đô thị, đóng vai trò ngăn chặn mùi hôi từ cống thoát ra ngoài môi trường. Dưới đây là phân tích chi tiết về sản phẩm này dựa trên những đặc điểm và công nghệ áp dụng:
- Chất liệu inox 304 – Độ bền vượt trội: Cánh van được sản xuất từ inox 304, loại thép không gỉ phổ biến nhờ vào khả năng chống ăn mòn tuyệt vời, độ cứng cao và bền bỉ trong môi trường có độ ẩm, hóa chất. Inox 304 cũng dễ dàng vệ sinh, bảo trì, giữ được độ sáng bóng, không bị gỉ sét dù tiếp xúc thường xuyên với nước mưa hay các chất thải từ hệ thống cống.
Thiết kế van ngăn mùi một chiều: cánh van ngăn mùi inox 304 có thiết kế một chiều với cơ chế tự động đóng mở dựa trên áp lực nước. Khi không có nước chảy qua, van sẽ đóng kín nhờ độ dốc 10% và lực ép từ gioăng cao su, ngăn không cho mùi hôi thoát ra từ cống. Lớp gioăng cao su bao quanh cánh van ngăn mùi inox 304 giúp tăng độ bám và kín khít, hạn chế tối đa khả năng thoát mùi.
Tính năng tự động điều chỉnh: Khi trời mưa lớn, áp lực nước từ dòng chảy sẽ tác động vào cánh van, làm van mở ra để nước thoát nhanh vào hệ thống cống. Khi nước giảm, van tự động đóng lại, ngăn chặn mùi từ cống. Nhờ thiết kế này, cánh van ngăn mùi inox 304 hoạt động hiệu quả mà không cần can thiệp thủ công, đảm bảo hệ thống thoát nước luôn thông thoáng và không có mùi hôi.
Ứng dụng trong thi công và bảo trì hố ga: Với đặc tính nhẹ, bền và chống ăn mòn, cánh van ngăn mùi inox 304 được sử dụng rộng rãi trong các hố ga thoát nước tại các đô thị lớn. Không chỉ giúp ngăn mùi, sản phẩm còn hỗ trợ quá trình thoát nước mưa nhanh chóng nhờ cơ chế tự động đóng mở linh hoạt. Việc sử dụng inox 304 cũng đảm bảo tuổi thọ lâu dài cho sản phẩm cánh van ngăn mùi inox 304, giảm thiểu chi phí bảo trì và thay thế.
Yếu tố thẩm mỹ và môi trường: Sử dụng vật liệu inox 304 giúp cánh van ngăn mùi inox 304 không chỉ đảm bảo tính bền vững mà còn mang lại vẻ ngoài sang trọng, hiện đại. Điều này góp phần duy trì mỹ quan cho hạ tầng đô thị. Bên cạnh đó, inox 304 là vật liệu tái chế, thân thiện với môi trường, phù hợp với xu hướng phát triển bền vững.
Phù hợp với nhiều điều kiện môi trường: Cánh van ngăn mùi inox 304 được thiết kế để hoạt động ổn định trong nhiều điều kiện môi trường khác nhau, từ đô thị với mật độ dân cư cao, hệ thống cống phức tạp cho đến các khu công nghiệp. Khả năng chịu nhiệt, chịu ăn mòn giúp van hoạt động tốt kể cả khi tiếp xúc với các hợp chất hóa học thường có trong nước thải.
Cánh van ngăn mùi inox 304 là giải pháp toàn diện cho các hệ thống cống thoát nước hiện đại, vừa đảm bảo hiệu quả ngăn mùi, vừa duy trì khả năng thoát nước tốt. Sản phẩm kết hợp giữa công nghệ tiên tiến và vật liệu chất lượng cao, góp phần nâng cao chất lượng môi trường sống và hạ tầng đô thị.
4. NGUYÊN LÝ HOẠT ĐỘNG CỦA CÁNH VAN NGĂN MÙI INOX
Nguyên lý làm việc của cánh van ngăn mùi inox 304 trong hệ thống hầm ga được thiết kế dựa trên việc sử dụng áp lực nước và trọng lực, mang lại hiệu quả ngăn mùi tối ưu, đồng thời đảm bảo khả năng thoát nước nhanh chóng. Dưới đây là phân tích chi tiết về nguyên lý hoạt động:

Quá trình khi có nước mưa hoặc dòng chảy
Khi trời mưa, nước sẽ chảy vào hầm ga thông qua lưới chắn rác. Lưới chắn này giữ lại các loại rác thải lớn để ngăn không cho chúng rơi vào hầm ga, chỉ để nước chảy xuống máng thu. Dòng nước này sau đó tác động trực tiếp vào cánh van ngăn mùi inox 304.
Nhờ thiết kế đặc biệt, áp lực của nước sẽ đẩy cánh van ngăn mùi inox 304 mở ra, tạo khoảng trống để nước nhanh chóng chảy vào hầm ga. Van (cánh van ngăn mùi inox 304) được thiết kế để mở một cách tự động khi có dòng chảy đủ mạnh, đảm bảo không làm chậm quá trình thoát nước, từ đó giảm nguy cơ ngập úng trên bề mặt đường phố.

Quá trình khi không có nước chảy xuống
Khi nước đã chảy hết và không còn dòng chảy xuống hầm ga, cánh van ngăn mùi inox 304 sẽ tự động đóng lại. Điều này diễn ra nhờ trọng lực của chính cánh van. Khi van đóng kín, nó sẽ ngăn hoàn toàn mùi hôi từ hầm ga phát tán ra ngoài. Nguyên lý này đảm bảo rằng dù trong mùa nắng, khi không có nước mưa, mùi hôi cũng không thể thoát ra môi trường bên ngoài, khắc phục được nhược điểm của các hầm ga hiện hữu.
Tính năng ngăn nước triều cường và nước ngược dòng
Trong các khu vực có địa hình thấp hoặc nơi có mực nước triều cao, cánh van ngăn mùi inox 304 còn có tác dụng ngăn nước tràn ngược từ cống lên mặt đường thông qua hầm ga. Khi mực nước trong cống dâng cao, áp lực từ phía dưới sẽ tác động vào cánh van, làm cho nó giữ kín và không cho nước tràn lên mặt đường. Điều này đặc biệt quan trọng ở những khu vực dễ bị ảnh hưởng bởi triều cường hoặc ngập úng do nước ngược dòng.

Hiệu quả ngăn chặn việc người dân tự ý lắp miệng thu nước
Một vấn đề thường gặp ở các hệ thống thoát nước hiện hữu là người dân tự ý lắp miệng thu nước để tránh mùi hôi, điều này vô tình làm giảm khả năng thoát nước khi trời mưa. Với hệ thống cánh van ngăn mùi inox 304, mùi hôi được ngăn chặn hoàn toàn, người dân không còn lý do để lắp miệng thu nước, từ đó duy trì được hiệu suất thoát nước tối đa khi trời mưa lớn.
Cánh van ngăn mùi inox 304 của công ty Lương Sơn Bạc là giải pháp lý tưởng cho các hệ thống thoát nước đô thị và công nghiệp. Với thiết kế hiện đại, chất liệu inox cao cấp, sản phẩm đảm bảo khả năng ngăn mùi hiệu quả, đồng thời tăng cường khả năng thoát nước nhanh chóng trong điều kiện thời tiết khắc nghiệt. Lương Sơn Bạc cam kết mang đến sản phẩm chất lượng cao, đáp ứng mọi nhu cầu của khách hàng về hiệu quả và độ bền.
Thông Tin Liên Hệ Công ty TNHH MTV Lương Sơn Bạc
- Địa chỉ: Road 9A, KCN Hòa Khánh, Liên Chiểu, Đà Nẵng.
- Hotline: 0905.468.055 hoặc 032.9304.936
- Email: congtyluongsonbac@gmail.com
- Website: lsb.com.vn










































Đánh giá
Chưa có đánh giá nào.